Via Polignano 42 Periferia, Castellana Grotte, BA, Puglia, 70013, Italia













Via Polignano 42 Periferia, Castellana Grotte, BA, Puglia, 70013, Italia
IN VENDITA – CAPANNONE INDUSTRIALE/ARTIGIANALE A CASTELLANA GROTTE (BA), VIA POLIGNANO – ZONA ARTIGIANALE
Rif. Agenzia: Licci Immobiliare
Si propone in vendita un ampio capannone industriale/artigianale situato nella zona artigianale di Castellana Grotte, in posizione strategica su Via Polignano, arteria di collegamento principale e facilmente accessibile.
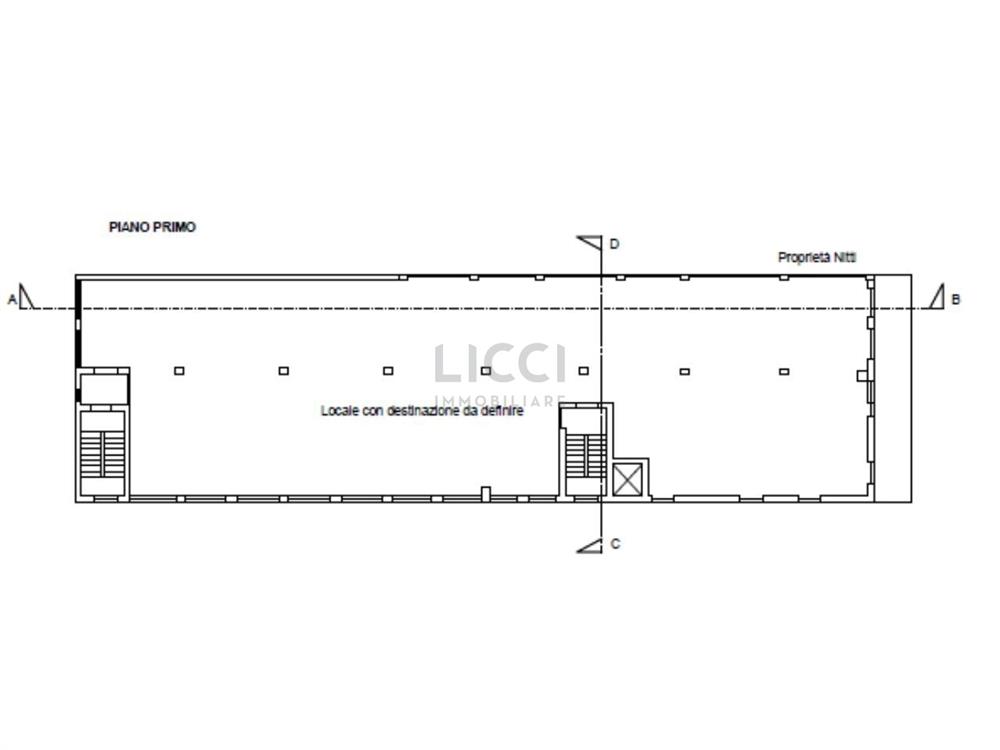
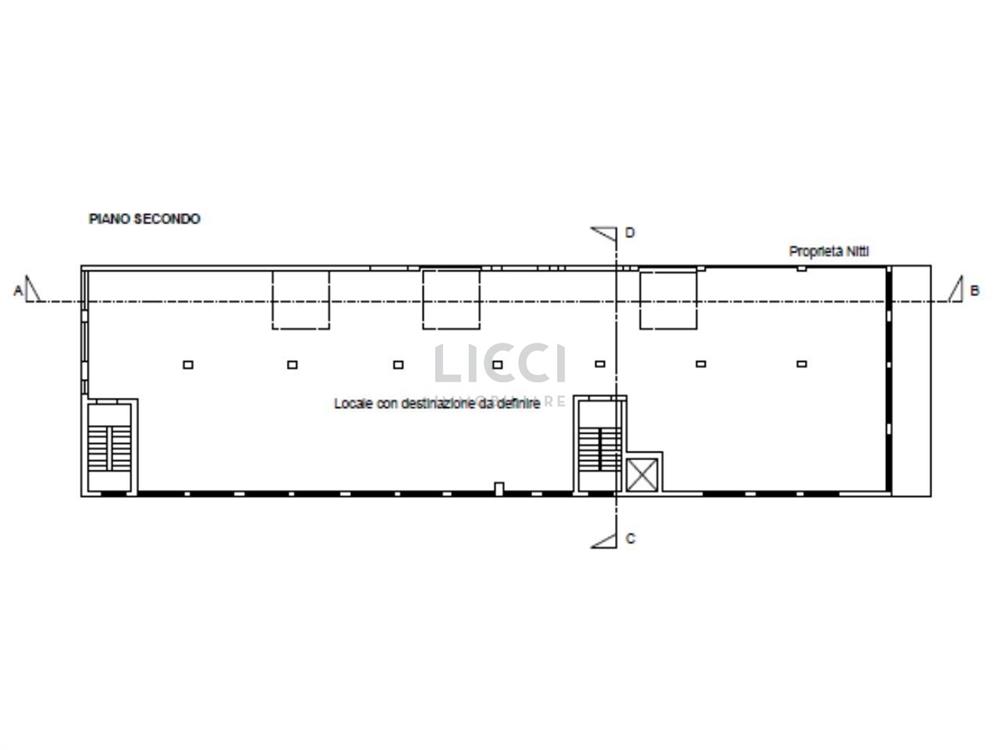
L’immobile si sviluppa su più livelli, per una superficie complessiva di 2.725 mq, così distribuiti:
Piano terra: 500 mq – superficie principale produttiva o commerciale
Piano primo: 500 mq – ideale come zona uffici o esposizione
Piano secondo: 500 mq – ulteriori spazi operativi o deposito
Lastrico solare: 500 mq – possibilità di installazioni tecniche o impianti fotovoltaici
Pertinenza esterna: 725 mq – area scoperta di manovra o parcheggio
Totale mq commerciali: 1.608,75
Caratteristiche principali:
Posizione strategica nella zona artigianale di Castellana Grotte
Ottima accessibilità e visibilità su strada principale
Ampi spazi interni e area esterna di pertinenza
Immobile allo stato rustico, da completare e ristrutturare secondo le proprie esigenze
Ideale per attività produttive, artigianali, logistiche o commerciali
Per maggiori informazioni o per fissare una visita chiamare al 391 7557240
Distanze:
mare/lago: 15 km
autostrada: 50 km
trasporti: 1 km
servizi: 1 km
parcheggio: 0 mt
realizzato da
€1,550,000
Aggiunto: 16 Dicembre 2025
€1,950,000
Aggiunto: 1 Agosto 2024
Vuoi saperne di più su nuovi cantieri, immobili disponibili, attività commerciali o sulla valutazione del tuo immobile? Parla subito con il nostro team.
Owning a home is a keystone of wealth… both financial affluence and emotional security.
Suze Orman